Wunderschön saniertes Bauernhaus mit Bachanstoss

Dieses liebevoll sanierte Fachwerkhaus vereint historischen Charme mit modernem Wohnkomfort. In naturnaher, ruhiger Lage am Dorfrand, begleitet vom sanften Plätschern des angrenzenden Bachlaufs, entsteht eine besonders idyllische Wohnatmosphäre. Wunderschöne Materialien und vier Schlafzimmer garantieren ein individuelles Wohnen auf höchstem Niveau mit genügend Platz für die ganze Familie.

Ob als Rückzugsort für Paare oder Familiennest – hier finden Sie Raum zum Leben, Arbeiten und Entspannen. Ein Zuhause, das nicht nur praktisch überzeugt, sondern auch emotional berührt.


Kurzbeschrieb

Dieses charmante, im Jahr 2020 umfassend sanierte Haus vereint modernen Wohnkomfort mit dem einzigartigen Charme eines idyllisch am Bach gelegenen Zuhauses. Auf 173 m² Wohnfläche und verteilt auf vier Schlafzimmer bietet die Liegenschaft am Dorfrand von Dorf genügend Platz für die ganze Familie. Wunderschöne Materialien, ein guter Ausbaustandard und die halb offene Küche garantieren ein Wohngefühl auf gehobenem Niveau.

Ob entspannte Stunden im Garten, gesellige Abende auf dem Sitzplatz oder Raum zum Spielen für Kinder – hier finden Sie Ihren persönlichen Rückzugsort im Grünen. Ein besonderes Highlight ist der behagliche, originale Kachelofen, der gerade an kalten Wintertagen für eine wohlige Atmosphäre sorgt.

  • Moderne Wärmepumpe mit Erdsonde, verteilt über Fussbodenheizung und Radiatoren

  • Vier Schlafzimmer, grosszügiger Wohnbereich und ein zusätzlicher Keller

  • Idyllisch am Dorfrand direkt an einem Bach gelegen

  • Zwei Aussenabstellplätze inklusive

Dieses Haus ist ideal für alle, die Platz und eine naturnahe Umgebung schätzen. Ein seltenes Angebot, das Funktionalität, Charme, Historie und Gemütlichkeit perfekt verbindet.


Eckdaten

Verfügbar ab
nach Vereinbarung

Objekttyp
Doppelhaushälfte

Anzahl Zimmer
6.5

Anzahl Nasszellen
2

Wohnfläche
141 m²

Gebäudevolumen
756 m³

Grundstückfläche
228 m²

Baujahr
1775 / Total saniert 2020


Pläne


Raumangebot

Einzigartiges Wohnerlebnis auf drei Etagen

Die Umgebung besticht durch ihre idyllische Lage direkt am Bach und bietet mit einem sonnigen Sitzplatz sowie viel Raum im Freien den idealen Ort für Entspannung und Spiel. Zwei praktische Aussenabstellplätze direkt beim Haus runden das äussere Angebot ab.

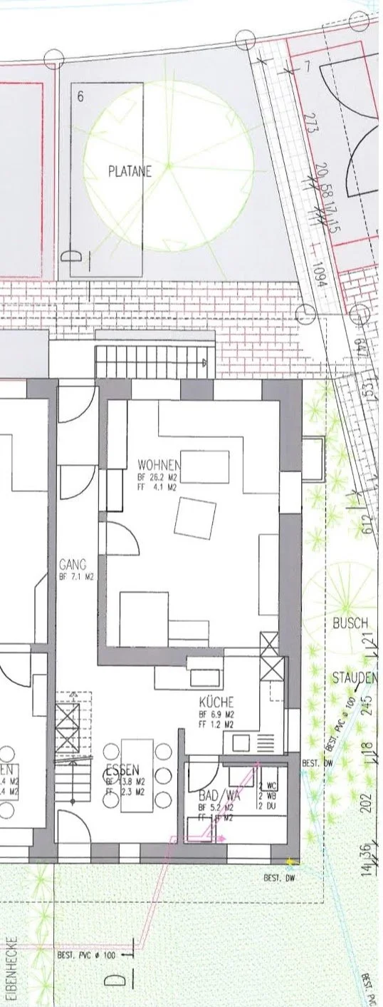
Im Erdgeschoss empfängt Sie ein offener, einladender Eingangsbereich, der in den grosszügigen Wohn- und Essbereich übergeht. Die sichtbaren Riegel des Fachwerks setzen attraktive Akzente und unterstreichen den historischen Charme des Hauses – ein wohnliches Zusammenspiel von Tradition und modernem Komfort. Die halb offene Küche fügt sich harmonisch in den Raum ein, während der originale Kachelofen für eine behagliche, geschichtsträchtige Atmosphäre sorgt. Das stilvoll sanierte Badezimmer mit Badewanne lädt zu entspannten Momenten ein. Ein integrierter Waschturm ergänzt das Raumangebot auf dieser Etage funktional.

Über die Treppe gelangen Sie ins 1. Obergeschoss, das über drei Schlafzimmer verfügt. Ein modernes, hell gestaltetes Badezimmer mit Dusche und WC bedient diese Wohnebene optimal. Ein besonderes Highlight bildet hier die freigelegte Natursteinwand, die dem Raum eine einzigartig authentische, charaktervolle Ausstrahlung verleiht.

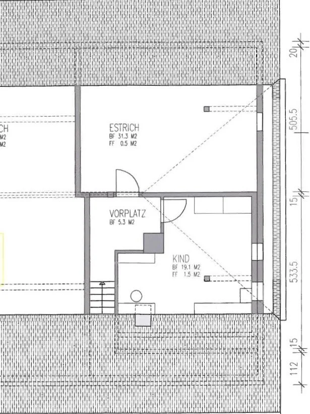
Das Dachgeschoss bietet mit zwei weiteren, besonders grosszügigen Zimmern viel Flexibilität – ob als Master-Bedroom, Homeoffice oder Atelier.

Im Untergeschoss sorgt ein zusätzlicher Kellerraum für ausreichend Stauraum. Dank der nachhaltigen Wärmepumpe mit Erdsonde und der Kombination aus Bodenheizung und Radiatoren geniessen Sie jederzeit ein angenehmes Raumklima.


Kellerraum


Lage

Die Liegenschaft liegt zentral und dennoch ruhig im Herzen des Dorfes. Die öffentlichen Verkehrsmittel sind in wenigen Gehminuten bequem erreichbar. Dank der guten Anbindung an das Postauto-Netz ist man in wenigen Minuten am Bahnhof Henggart und erreicht so zügig die Zentren Winterthur und Zürich. Die Umgebung zeichnet sich durch eine charmante, dörfliche Atmosphäre aus. Zudem bietet die Lage eine gute Anbindung an die umliegenden Gemeinden.


Ortschaft

Die idyllische Gemeinde Dorf im Zürcher Weinland besticht durch ihren gut erhaltenen ländlichen Charakter und eine hohe Lebensqualität. Geprägt von historischen Riegelhäusern und dem markanten Schloss Goldenberg, bietet der Ort eine ruhige und naturnahe Wohnumgebung. Ein aktives Dorfleben und weitläufige Naherholungsgebiete direkt vor der Haustür machen die Gemeinde besonders für Menschen attraktiv, die Entspannung abseits der Hektik suchen.


Umgebung

Zahlreiche Wander- und Velowege direkt vor der Haustür laden zu ausgedehnten Erholungstouren in der Natur ein. Gleichzeitig ist die Umgebung durch die Nähe zu grösseren Zentren wie Winterthur und den guten Autobahnanschluss ideal an den öffentlichen und privaten Verkehr angebunden. Diese Kombination aus naturnaher Ruhe und urbaner Erreichbarkeit macht die Lage besonders attraktiv.


Einkauf

Grössere Einkäufe lassen sich bequem in den benachbarten Gemeinden Henggart oder Andelfingen erledigen, die in wenigen Minuten erreichbar sind. Dort finden Sie diverse Grossverteiler wie Migros und Coop sowie spezialisierte Fachgeschäfte. Für ein erweitertes Einkaufserlebnis sind die Städte Winterthur und Schaffhausen ebenfalls schnell mit dem Auto oder dem Postauto zu erreichen.


Sport&Freizeit

Die Erholungszone mit Wald, Rhein und Natur liegt in unmittelbarer Nähe und bietet zahlreiche Möglichkeiten für Outdoor-Aktivitäten. Ob Wandern, Radfahren oder Wassersport, hier findet jeder seine persönliche Auszeit. Zudem befinden sich nahe Dorf zwei 18-Loch-Golfplätze: der Golfclub Schloss Goldenberg und der Golfclub Rheinblick. Auch Reitställe und Sportanlagen sind in der Region gut vertreten. Wer sich gerne bewegt, kommt hier auf seine Kosten.


Verkaufspreis

Der Verkaufspreis für dieses exklusive Reiheneinfamilienhaus beträgt CHF 990’000.–. Dieser Preis reflektiert den ausgezeichneten Zustand der Immobilie sowie den hohen Wohnkomfort, den sie ihren zukünftigen Eigentümern bietet.


Verkaufsbroschüre


Gebäudeversicherung


Grundbuchauszug


Finanzierungsbeispiel


Ihre Ansprechsperson

Timon Weber

Tel. 044 879 19 08

timon.weber@a-m.ch